建物
物件画像
周辺環境
QRコードをスキャンして携帯でもご覧になれます。

-

グラン トガリーゼ

物件情報更新日
2026年05月23日
マンション
10万8,500円
  • 共益費・管理費:
    6,200円
  • 敷金:
    なし
  • 礼金:
    1ヶ月
  • 保証金:
    なし
静岡県駿東郡長泉町中土狩564-5

東海道本線(東海) 三島駅 徒歩 27分

御殿場線 長泉なめり駅 徒歩 22分

NEW即入居可おすすめ
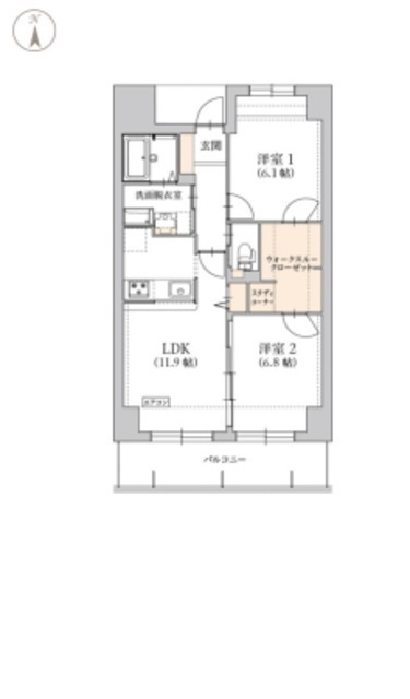
間取り
2LDK
所在階
1階
主要採光面
-
専有面積
59.56㎡
資料請求お気に入りに追加
お問い合わせ先: 055-962-6600
電話でお問合せする
物件情報
賃料
10万8,500円(税無)
リフォーム
なし
リノベーション
なし
共益費・管理費
6,200円(税無)
敷金
なし
礼金
1ヶ月
保証金
なし
更新料
あり(1.00ヶ月)
火災保険
要 1年 12,000円
保証会社名

保証会社:加入要

保証会社利用料:基本保証料/家賃等総額50% 月次保証料/家賃等総額2%

契約条件
普通借家権
その他費用
HEISEI住まいるパック料:99,000円(税込)
室内抗菌:16,500円(税込)
駐車場(縦列後):5,500円(税込)
所在地
静岡県駿東郡長泉町中土狩564-5
交通

東海道本線(東海) 三島駅 徒歩 27分

御殿場線 長泉なめり駅 徒歩 22分

間取り
2LDK
建物現況
建築中
部屋
LDK 11.9帖 、洋 6.1帖 、洋 6.8帖
専有面積
59.56㎡
築年月
2026年10月予定
所在階/建物階建
1階 103 / 10階建
入居可能時期
2026年10月上旬
駐車場
あり 敷地内 有料 6,600円(税込)
設備・条件
カウンターキッチン システムキッチン 洗面化粧台 温水洗浄便座 シャワールーム 浴室乾燥機 追い焚き TVドアホン オートロック カードキー 防犯カメラ 宅配ボックス 敷地内ゴミ置場 駐輪場 BS受信可 CS受信可 ガス:都市ガス コンロ:ガス 洗濯機置場:室内 トイレ:専用 バス:専用、バス・トイレ別 ペット:不可
物件情報更新日
2026年05月23日(物件情報更新日より14日以内に更新)
物件コード
68707
取引態様
仲介
建物情報
建物名称
グラン トガリーゼ
建物構造
鉄筋コンクリート造(RC)
建物階建
10階建
資料請求お気に入りに追加
お問い合わせ先: 055-962-6600
電話でお問合せする

空室情報

エイブルネットワーク沼津駅前通り店
エイブルネットワーク沼津駅前通り店
来店・案内予約はこちら
〒410-0801
静岡県沼津市大手町5丁目11-5
055-962-6600
営業時間:10:00~19:00 定休日:水曜日

条件がよく似た物件

外観
外観
地図
間取図/区画図
間取図/区画図
外観
地図
マックスバリュ長泉中土狩店(スーパー) 130m
ユーコープ桜づつみ店(スーパー) 870m
ローソン長泉中土狩北店(コンビニ) 226m
セブンイレブン長泉中土狩店(コンビニ) 912m
セブンイレブン長泉桜提2丁目店(コンビニ) 901m
セブンイレブン長泉なめり南店(コンビニ) 1066m
中央保育園(幼稚園・保育園) 816m
スマートフォン版の表示に切り替える